Overview
- Updated On:
- novembre 17, 2025
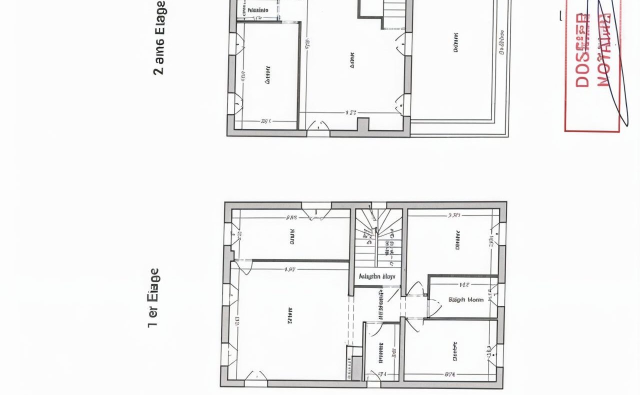
- 158 m2
- Year Built:0
Description
Type de bien : Maison à rénoverUsage conseillé : Pôle médical pluridisciplinaire (cabinet médical, paramédical, consultations, etc.)
Points clés
Vente : maison seule — possibilité d’aménagement / extension.
Environnement : Quartier entièrement résidentiel, entouré de résidences neuves construites par le promoteur.
Besoin local : absence d’offre médicale (médecins, infirmiers, gynécologues) dans le secteur → forte opportunité de création d’un pôle de santé de proximité.
État : Bien existant conservé par le promoteur, travaux à prévoir (à aménager selon projet médical).
Atouts : emplacement stratégique dans un secteur densément peuplé, visibilité, possibilité d’aménager stationnements/accès patients.
Public cible : médecins généralistes, spécialistes, équipes paramédicales souhaitant s’associer pour créer un pôle.
Avantages pour un porteur de projet médical
Implantation rapide dans un secteur sans concurrence directe.
Potentiel patientèle importante du fait des résidences attenantes.
FATY
Conseillère Immobilière
OLMETA Immobilier204 avenue Louis-Pasteur,
06290 Roquebrune-Cap-MartinTél. : 06 95 89 28 87
Honoraires à la charge du vendeur. DPE en cours. Les informations sur les risques auxquels ce bien est exposé sont disponibles sur le site Géorisques : georisques.gouv.fr.
Votre conseiller Olmeta immobilier : Agent Commerciale – Fathy Bella





